
Polad quruluşu bağırsaqları bir binanın dam drenaj sisteminin vacib bir hissəsidir. Onların əsas funksiyası damdan yağış sularını toplamaq, şaquli borulara yönəltmək və sonra açıq divarların və ya islatıcı təməllərin qarşısını alaraq açıq drenaj sisteminə axıdılmasıdır. Luweiyuanın məhsul dizaynı və quraşdırılması, hamar drenaj və müstəsna davamlılığı təmin edən yüksək güc və yüngül çəki ilə xarakterizə olunur.
Polad quruluşu bağırsaqları bir binanın dam drenaj sisteminin vacib bir hissəsidir. Onların əsas funksiyası damdan yağış sularını toplamaq, şaquli borulara yönəltmək və sonra açıq divarların və ya islatıcı təməllərin qarşısını alaraq açıq drenaj sisteminə axıdılmasıdır. Luweiyuanın məhsul dizaynı və quraşdırılması, hamar drenaj və müstəsna davamlılığı təmin edən yüksək güc və yüngül çəki ilə xarakterizə olunur.
Liweiyuanın polad quruluşu bağırsaq korroziyaya davamlı və təsirlərə davamlı materiallardan hazırlanmışdır.
Məhsulumuz, əla korroziyaya qarşı müqavimət, aşağı qiymətə və uzun bir xidmət həyatı təklif edən isti-salkanıdır. 1,5-2,5 mm qalınlığında mövcuddur, əksər tətbiqlər üçün uyğundur.
Paslanmayan poladdan hazırlanmış bu məhsul korroziyaya qarşı müqavimət göstərir və sahil və ya rütubətli mühit üçün xüsusilə uyğundur. 1.0-2.0 mm qalınlığında mövcuddur, daha yüksək qiymət təklif edir, lakin uzun bir xidmət həyatı.
Rəngli örtülmüş polad məhsullarımız, həm korroziya müqaviməti və dekorativ təsirləri üçün poliester və ya flüorokarbon kimi hava davamlı örtüklü bir örtüklü bir örtük üzərində qurulmuşdur. 1.2-2.0 mm qalınlığında mövcuddur, yüksək səviyyədə estetik cazibədarlıq tələb edən binalar üçün uygundur.
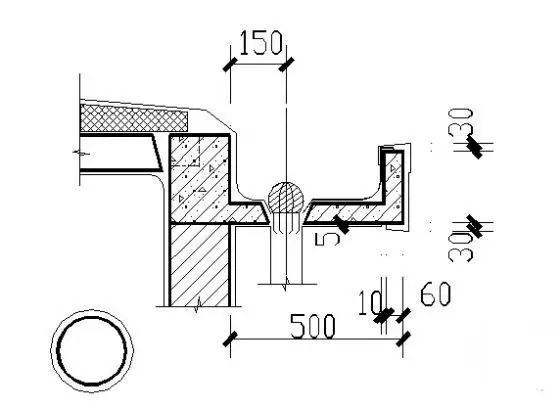
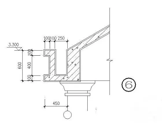
Polad quruluşlu tıxacın struktur forması dam yamacına və eşitmə dizaynına uyğunlaşdırılmalıdır. Ümumi növlərə u şəkilli və V şəkillidir. Quraşdırma prosesi belədir:
Polad quruluşumuz, polad quruluşunun qulaq asma şüalarına və ya purlins qədər təmin etmək üçün bucaq polad bağlayıcı mötərizələrdən istifadə edir. Bracket arası, hətta tıxac boyunca stress paylamasını təmin etmək üçün 600-1000mm-dir.
Bitmiş bağırsaqlar əvvəlcədən ölçülür və bağlayıcı və ya qaynaq istifadə edərək saytda qoşulmuşdur. Bağırsaq arasındakı qovşağında mastik tələb olunur və dam örtüyü.
Dam örtüyünün üstündəki bir yanıb-sönə bilərik. Bağırsağın alt ucu dam örtüyünün altına qoyulmalıdır və mastik ilə möhürlənməlidir. Drenaj delikləri, ilk növbədə yağış suları yüksəlişləri ilə əlaqə üçün tıxacın dibində verilməlidir.
Polad quruluşumuzu bağırsaq istehsal prosesi, rəsm ölçülərinə, əyilmə, rəsm, hazır məhsul yoxlamasına, qablaşdırma və göndərmə görə kəsmə daxildir. Liweiyuan'ın polad quruluşu bağırsaqları, süzgəcli drenaj təmin etmək, korroziyaya qarşı müqavimət, hamar drenaj və davamlılığı təmin etmək üçün hazırlanmış və quraşdırılmışdır.